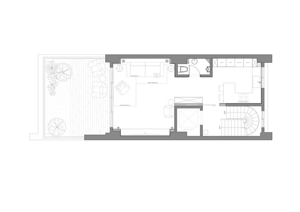
In a narrow townhouse with daylight limited to the front and rear, light becomes the primary element shaping the interior experience. Located in a dense urban setting, the long and narrow townhouse is constrained by party walls on both sides, allowing natural light to enter only from the front and rear façades. This condition often results in dark and compressed interior spaces, particularly toward the center of the plan. The client sought a home that felt calm, personal, and grounded—a place where daily life could naturally settle after stepping inside.

© Suiyu Studio
- architects: zuso studio
- Location: Tainan, Taiwan
- Project Year: 2025
- Photographs: Suiyu Studio
- Area: 337.0 m2
A Walk Through House Kuo: Where Concrete Meets the Forest’s Whisper
Only in a forest, there is a certain deep silence, a hush, which is nothing but rustling leaves and the smell of earth that is soft and damp. It was this soundless atmosphere that I chose as my company when I very first went to House Kuo, a residential house by zuso studio that not only takes a plot but also seems to be having a dialogue with the trees around it. This is not a house that demands attention; instead, it is open to be found with its textured concrete and warm wood being revealed gradually, like a secret whispered in trust.
The house is first seen through the path not as luxurious but as simple in its geometric shapes. It consists of two unique blocks that interlock – a solid and strong base and a lighter upper floor that is cantilevered and appears to float with gentle confidence. This is not just architectural artistry. The volume that has been suspended produces a protected in-between area underneath-a covered terrace that serves as a transitional zone. This is the architectural equivalent of stopping at the border of the woods to take a deep breath before entering, a place that is neither completely garden nor completely living room but perfectly both.
Step inside, and the initial impression of robust concrete gives way to a surprising domestic warmth. The architects have masterfully played a duet between these two materials. The solidity of the exposed concrete walls and ceilings provides a profound sense of shelter and permanence. Against this cool, gray canvas, the rich, natural grain of the wood-clad walls and built-in furnishings sings a warmer, softer song. This material conversation defines the entire experience. You feel both protected by the concrete’s embrace and comforted by the wood’s organic presence. It’s a balance that calms the mind—the structural honesty is laid bare, yet the atmosphere is utterly inviting.
The True Magic of House Kuo
House Kuo, however, lies in its eyes—the meticulously placed windows. This is not a glass box; it is a carefully framed gallery of living landscape art. Each aperture is purpose-cut, not to flood the space with indiscriminate light, but to curate specific vignettes of the forest. A long horizontal window in a sitting area might frame a perfect lineup of birch trunks, turning them into a living mural. A taller vertical window by a staircase captures a slice of the canopy and sky. You move through the home and the outside view unfolds in a cinematic sequence, constantly reminding you of your context without ever overwhelming the sense of interior refuge. The boundary between inside and out doesn’t vanish; it becomes thoughtfully porous.
Living here, one imagines, would be a daily practice in mindfulness. The design gently dictates a rhythm attuned to nature. The covered terrace invites morning coffee accompanied by the sound of rain, protected yet immersed. The strategic windows track the sun’s passage, painting slow-moving light sculptures across the concrete walls throughout the day. The material palette requires little ornamentation, for the focus is continually drawn back to the ever-changing, dappled life of the forest just beyond the glass.
End Thoughts
In an era where residential architecture often leans toward the extravagantly sculptural or the minimally sterile, House Kuo by zuso studio offers a resonant third way. It is a profoundly grounded and human-scaled piece of design. It doesn’t force the landscape to conform to it; it has the humility and intelligence to conform to the landscape. The result is more than a house—it is a tranquil sanctuary, a calibrated filter for nature’s beauty, and a powerful reminder that the most sophisticated design often feels like the most natural.